7207 Valley Mint DriveKaty, TX 77493
Due to the health concerns created by Coronavirus we are offering personal 1-1 online video walkthough tours where possible.




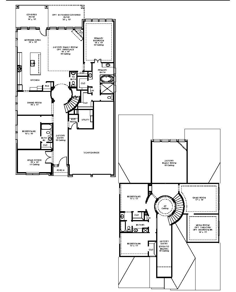
Home office with French doors set at entry with 20-foot ceiling. Formal dining room opens to rotunda with curved staircase. Two-story family room with 18-foot ceiling, a wood mantel fireplace, and wall of windows opens to kitchen and morning area. Kitchen hosts generous island with built-in seating space and a 5-burner gas cooktop. Primary suite with a wall of windows. Primary bath includes dual vanity, corner freestanding tub, separate glass-enclosed shower and large walk-in closet with access to utility room. First-floor guest suite. A game room, media room and two secondary bedrooms are upstairs. Extended covered backyard patio. Mud room off three-car garage.
| 2 months ago | Listing updated with changes from the MLS® | |
| 2 months ago | Listing first seen on site |
IDX information is provided exclusively for consumers’ personal, non-commercial use. It may not be used for any purpose other than to identify prospective properties consumers may be interested in purchasing. This data is deemed reliable but is not guaranteed accurate by the MLS.
Data provided by HAR.com © 2026. All information provided should be independently verified.

Did you know? You can invite friends and family to your search. They can join your search, rate and discuss listings with you.